<< Pisos en venta en Terrassa
Piso en venta en Terrassa
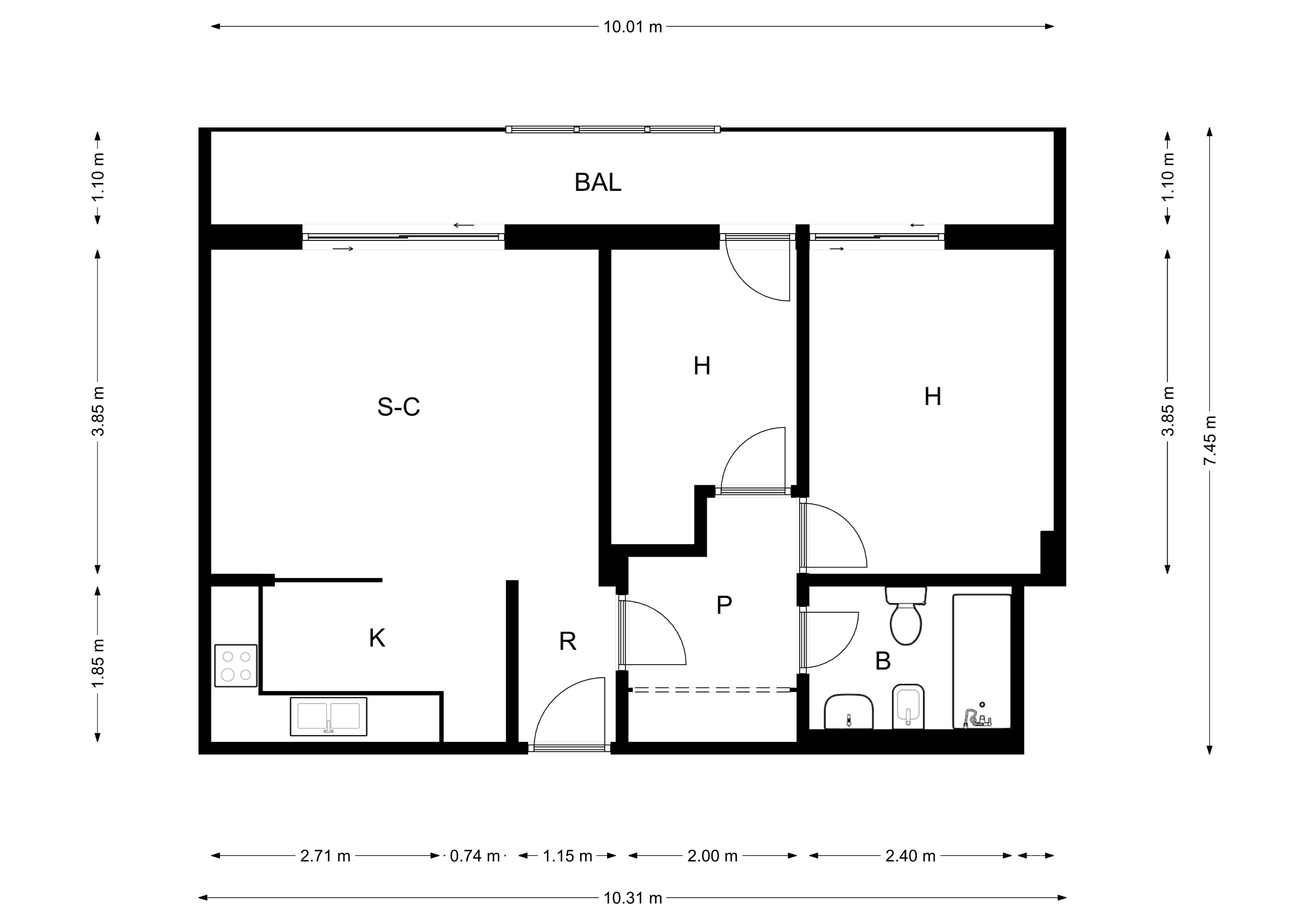
Terrassa | 81 m² | 2339 € / m² | Habitaciones: 2 | Baños: 1
189 500 €
Calefacción
Comentario del anunciante:
"ESTUPENDA VIVIENDA EN VENTA Excelente vivienda de dos dormitorios y un baño. Se encuentra en la 3ª planta de un edificio residencial. No dispone de ascensor. Situado en Terrassa. La vivienda se distribuye en dos dormitorios y, salón-comedor, cocina independiente y un baño. Cuenta con cocina amueblada y equipada con muebles altos y bajos, vitrocerámica, horno y campana extractora. Dispone de calefacción. Se encuentra ubicado en el Centro de Terrassa. Cuenta con fácil acceso a través de las principales carreteras y buenas comunicaciones por transporte público. La parada de metro más cercana es Vallparadís Universitat. La parada de autobús más cercana es Vapor Universitari y se encuentra a menos de 5 minutos andando. La parada de taxi más cercana se encuentra a menos de 20 minutos andando. En su entorno existen viviendas plurifamiliares de similares características. La zona cuenta con todo tipo de servicios básicos, el hospital más cercano se encuentra a 580 metros, la farmacia más cercana se encuentra a 130 metros, existen 2 colegios a menos de 300 metros, existen 2 universidades a menos de 300 metros. Además, a menos de 500 metros también puedes encontrar 3 supermercados, un banco, una comisaría de policía. La zona cuenta con una amplia oferta de entretenimiento con 5 parques, un centro cultural, bares, restaurantes y comercios a pocos minutos de la vivienda.En cuanto al transporte privado, la zona dispone de parkings privados, 7 parkings públicos y aparcamiento en la calle. La vivienda tiene un fácil acceso por carretera y está bien comunicado a través de la Autopista Barcelona-Terrassa, Carretera de Terrassa y la Avinguda del Valles. Estado de la vivienda: vacante Asociado al colegio de Apis con el número APAI-13387, Nº de registro Aicat 11218. "