<< Pisos en venta en Santa Eulàlia
Piso en venta en Santa Eulàlia
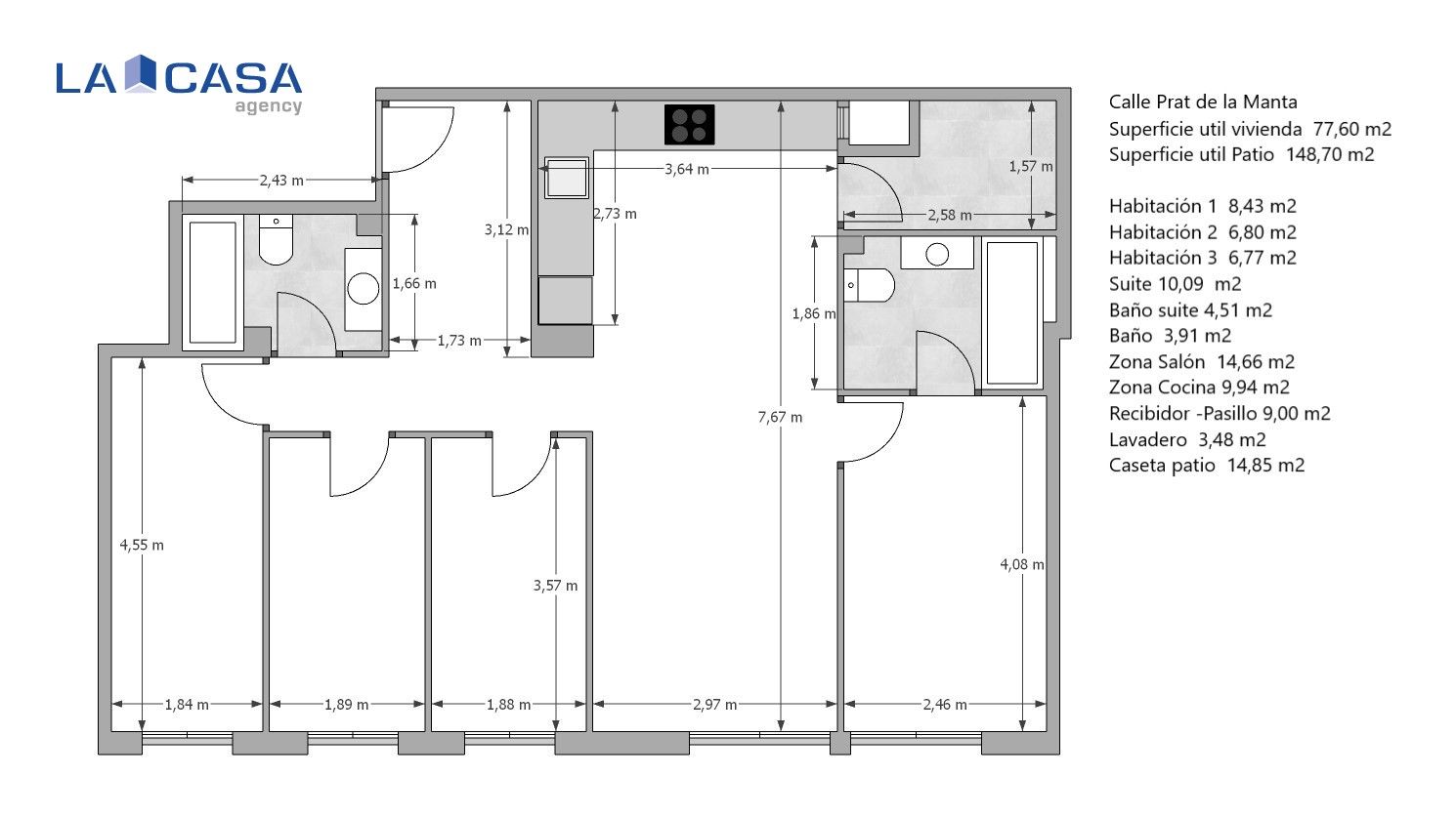
Santa Eulàlia | 100 m² | 3890 € / m² | Habitaciones: 4 | Baños: 2
389 000 €
Ascensor | Terraza | Calefacción
Comentario del anunciante:
¡Oportunidad única! Se vende un amplio piso en una excelente ubicación en Santa Eulalia, con todas las comodidades que puedas desear. Este luminoso y espacioso piso de 90 metros útiles se encuentra en la primera planta real de un edificio con ascensor, en una finca con pocos vecinos y en totalmente reformado. IMPORTANTE! Las imágenes que se muestran son renders digitales que reflejan una aproximación al resultado final. Características del inmueble: Superficie de 90 metros cuadrados útiles. 4 habitaciones: 1 doble y 3 individuales, proporcionando espacio para toda la familia o posibilidades de adaptación según tus necesidades. Salón comedor con acceso directo a una acogedora terraza, perfecta para disfrutar del aire fresco y momentos al aire libre. Cocina americana, moderna y funcional, que maximiza el espacio y facilita la interacción social mientras cocinas. 2 baños completos, uno de ellos en suite, con bañera y plato de ducha respectivamente, brindando comodidad y privacidad. GRAN TERRAZA de 180 metros cuadrados de uso exclusivo, ideal para organizar reuniones con amigos y familiares o simplemente relajarse al aire libre. Ubicación privilegiada: Este encantador piso se encuentra en una zona muy buscada de Santa Eulalia, cercana a una amplia variedad de comercios, servicios y opciones de transporte público, lo que garantiza una vida cómoda y conveniente para ti y tu familia. No dejes pasar esta oportunidad de adquirir este maravilloso piso que lo tiene todo: espacio, comodidad, luminosidad y una ubicación inmejorable. ¡Contáctanos hoy mismo para más información o para programar una visita! Somos una agencia inmobiliaria con presencia en todo el territorio nacional, contando con más de 70 oficinas, ofreciendo una cobertura absoluta en las principales ciudades del país. Nuestro trabajo consiste en realizar todos los trámites y gestiones necesarios para la intermediación inmobiliaria. Disponemos de una amplia cartera de inmuebles de todo tipo. *El precio del inmueble aquí expuesto no incluyen honorarios de agencia por intermediación inmobiliaria. Si desea saber el valor de su inmueble para vender también realizamos valoraciones GRATUITAS. Si desea comprar para invertir, nosotros también nos encargamos de acompañarlo desde el proceso de su compra hasta la búsqueda de inquilinos, seguro y gestión de su alquiler. Contamos con un departamento financiero si necesita asesoría o mejorar las condiciones de su hipotec