<< Pisos en venta en A Coruña
Piso en venta en A Coruña
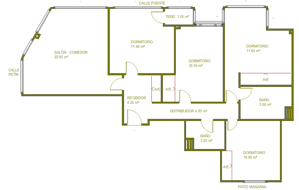
A Coruña | 98 m² | 3051 € / m² | Habitaciones: 3 | Baños: 2
299 000 €
Ascensor | Calefacción
Comentario del anunciante:
Entrando en nuestra página web podrás ver la ficha técnica con todos los datos del inmueble y un plano de distribución con los metros cuadrados de cada estancia. También podrás almacenar una búsqueda y recibirás cada semana en tu email los inmuebles que se adapten a tus criterios. CALLE PUENTE (ZONA CUATRO CAMINOS - GAITEIRA).- Tres dormitorios, salón-comedor, cocina, tendedero y dos baños (uno de ellos en suite). Trastero y plaza de garaje en concesión en calle Posse (le quedan veintisiete años).Es un quinto con ascensor con capacidad para seis personas a cota cero. Todo exterior a dos calles, excepto un dormitorio soleado que da al patio de manzana, y los baños que son interiores. El piso está para entrar a vivir y se vende sin muebles. Ventanas de doble cristal de pvc con cierre de corredera, exceptuando el salón que son abatibles. Carpintería interior en roble. Suelos de parquet en toda la vivienda excepto en cocina, tendedero y baños que tienen plaqueta. Armarios empotrados en todos los dormitorios y en el recibidor. Puerta exterior blindada. Cuota de comunidad de sesenta euros con cincuenta céntimos la vivienda y veinticuatro euros la plaza de garaje cada trimestre. Construcción del año dos mil uno, situado en una de las mejores zona de A Coruña con todos los servicios y comodidades. A un paso del centro comercial cuatro caminos, parques, colegios, líneas de bus urbana en todas las direcciones, etc. En la actualidad se están realizando obras dentro del proyecto del Concello de humanización urbanística. Nuestros asesores inmobiliarios están especializados por zonas para poder darle el mejor servicio y que el inmueble que usted compre esté a un precio de mercado adecuado. Además verificamos todos los datos de los inmuebles (metros, antigüedad, calidades, etc.) y con cada visita le entregamos una ficha (con todas las características, un plano, información de la zona y los gastos adicionales al precio de compra). Horario de 10.00 a 14.00 y de 16.00 a 20.00 de lunes a viernes. Este anuncio no es vinculante (puede contener errores). Se muestra a título informativo y no contractual.