<< Pisos en venta en Cambrils
Casa en venta en Cambrils
Cambrils | 190 m² | 2157 € / m² | Habitaciones: 4 | Baños: 3
410 000 €
Aire acondicionado | Piscina | Terraza | Jardin
Comentario del anunciante:
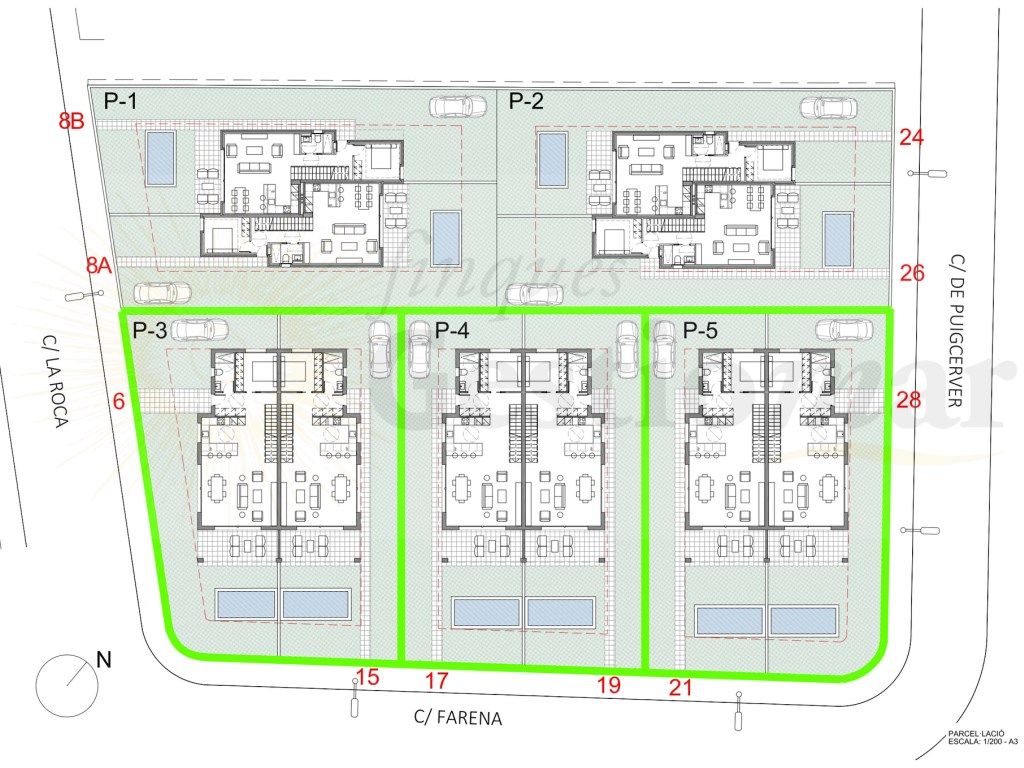
Ya está en marcha la promoción de 'Calle La Roca - Calle Farena' de Vilafortuny, Cambrils. Sin gastos comunitarios, piscina privada, gran parcela de 256 m2. Cuatro habitaciones, una de ellas en planta baja junto a un baño completo. Calefacción por radiadores y caldera de gas ciudad, preinstalación de aire acondicionado, acabados de gran calidad que se pueden ver en otra promoción que se está acabando, carpintería de aluminio con vidrio doble y cámara con rotura de puente térmico, puertas lacadas en blanco, suelos de gres y alicatado de baños de marca Roca, muebles de cocina a elegir, sistema pasivo de captación solar de apoyo al agua caliente, depósito de agua de pluviales para recoger el agua de lluvia como apoyo al riego del jardín, múltiples detalles y características a elegir por el cliente. Venga a vernos y le informaremos en detalle. #ref:CAS-PAR-003